Підбір по параметрам
підбір по параметрам
Квартири з ремонтом
Площа, м2
КІЛЬКІСТЬ КІМНАТ
Поверх
Підібрати
замовити дзвінок
Ми передзвонимо вам найближчим часом
Запис на зустріч у відділ продажу
Заповніть будь-ласка форму, коли вам зручно відвідати наш житловий комплекс
до ЖК
до поверху
секція
А
підбір по параметрам
1
2
3
4
5
6
7
8
9
10
комерційні приміщення
А
Б
В
Г

тип
3-6
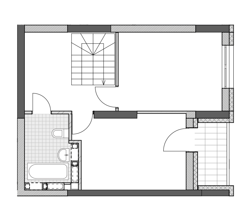
Загальна пл.: 92,74 м2
Житлова пл.: 43,40 м2
| № | Приміщення | м2 |
| I рівень | ||
| 1 | Кухня-столова | 13,84 |
| 2 | Вітальня | 14,93 |
| 3 | Хол зі сходами | 15,08 |
| 4 | Санвузол | 2,99 |
| 5 | Лоджія (k=0,5) | 1,73 |
| II рівень | ||
| 6 | Спальня | 14,42 |
| 7 | Спальня | 14,05 |
| 8 | Хол | 8,49 |
| 9 | Ванна | 5,50 |
| 10 | Лоджія (k=0,5) | 1,73 |
I рівень
II рівень
