Підбір по параметрам
підбір по параметрам
Квартири з ремонтом
Площа, м2
КІЛЬКІСТЬ КІМНАТ
Поверх
Підібрати
замовити дзвінок
Ми передзвонимо вам найближчим часом
Запис на зустріч у відділ продажу
Заповніть будь-ласка форму, коли вам зручно відвідати наш житловий комплекс
до ЖК
до поверху
секція
А
підбір по параметрам
1
2
3
4
5
6
7
8
9
комерційні приміщення
А
Б
В
Г

тип
2-3
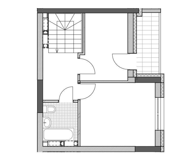
Загальна пл.: 75,64 м2
Житлова пл.: 24,27 м2
| № | Приміщення | м2 |
| I рівень | ||
| 1 | Кухня-столова | 25,06 |
| 2 | Хол зі сходами | 10,78 |
| 3 | Санвузол | 2,98 |
| 4 | Лоджія (k=0,5) | 1,54 |
| II рівень | ||
| 5 | Спальня | 14,50 |
| 6 | Спальня | 9,77 |
| 7 | Хол | 4,98 |
| 8 | Ванна | 4,03 |
| 9 | Лоджія (k=0,5) | 2,01 |
I рівень
II рівень
