Підбір по параметрам
підбір по параметрам
Квартири з ремонтом
Площа, м2
КІЛЬКІСТЬ КІМНАТ
Поверх
Підібрати
замовити дзвінок
Ми передзвонимо вам найближчим часом
Запис на зустріч у відділ продажу
Заповніть будь-ласка форму, коли вам зручно відвідати наш житловий комплекс
до ЖК
до поверху
секція
А
підбір по параметрам
1
2
3
4
5
6
7
8
9
10
11
12
комерційні приміщення
А
Б
В
Г

тип
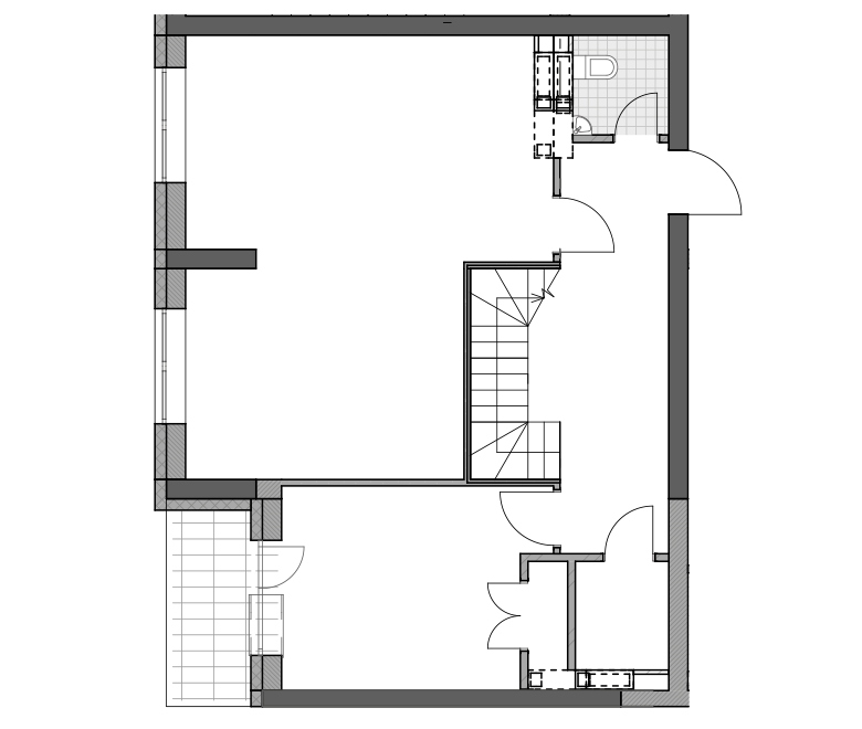
3-1
Загальна пл.: 134,05 м2
Житлова пл.: 56,49 м2
| № | Приміщення | м2 |
| I рівень | ||
| 1 | Кухня-столова | 34,24 |
| 2 | Вітальня | 13,67 |
| 3 | Хол зі сходами | 15,50 |
| 4 | Санвузол | 2,29 |
| 5 | Гардероб | 2,49 |
| 6 | Лоджія (k=0,5) | 1,49 |
| II рівень | ||
| 7 | Спальня | 19,01 |
| 8 | Спальня | 23,81 |
| 9 | Хол | 12,59 |
| 10 | Ванна | 5,56 |
| 11 | Кладова | 2,70 |
| 12 | Лоджія (k=0,5) | 1,49 |
I рівень
II рівень
